REQUEST A TOUR If you would like to see this home without being there in person, select the "Virtual Tour" option and your agent will contact you to discuss available opportunities.
In-PersonVirtual Tour

$3,999,000
Est. payment /mo
6,098 Sqft Lot
UPDATED:
Key Details
Property Type Single Family Home
Sub Type Mixed Use
Listing Status Active
Purchase Type For Sale
MLS Listing ID 3997144
Year Built 2026
Annual Tax Amount $44,322
Tax Year 2024
Lot Size 6,098 Sqft
Property Sub-Type Mixed Use
Property Description
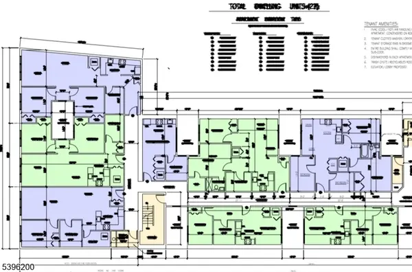
one of a Kind, First floor 9900 sq ft commercial space, with approval for 9 apartment on each of the existing 2nd and 3rd floors and 9 more by adding a forth floor, a total of 27 apartments. , approved for 3 Studios, 9 one bedroom, 9 two bedrooms and 6 three bedrooms, plus the 1st floor. Best location in Passaic, Easy to show, call for more info
Location
State NJ
County Passaic
Rooms
Basement Unfinished
Interior
Heating Gas-Natural
Cooling 4+ Units
Flooring See Remarks
Equipment See Remarks
Heat Source Gas-Natural
Exterior
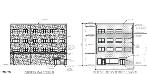
Exterior Feature Brick/Block
Utilities Available Gas In Street
Roof Type Flat
Building
Story 4
Sewer Public Sewer
Water Public Water
Others
Ownership Fee Simple
Read Less Info

Information deemed reliable but not guaranteed. Copyright © 2026 Garden State Multiple Listing Service, L.L.C. All rights reserved.
Listed by HOMENET REALTY
GET MORE INFORMATION





